Plan De Maison R1 Avec Garage
Par xavier chain 3.
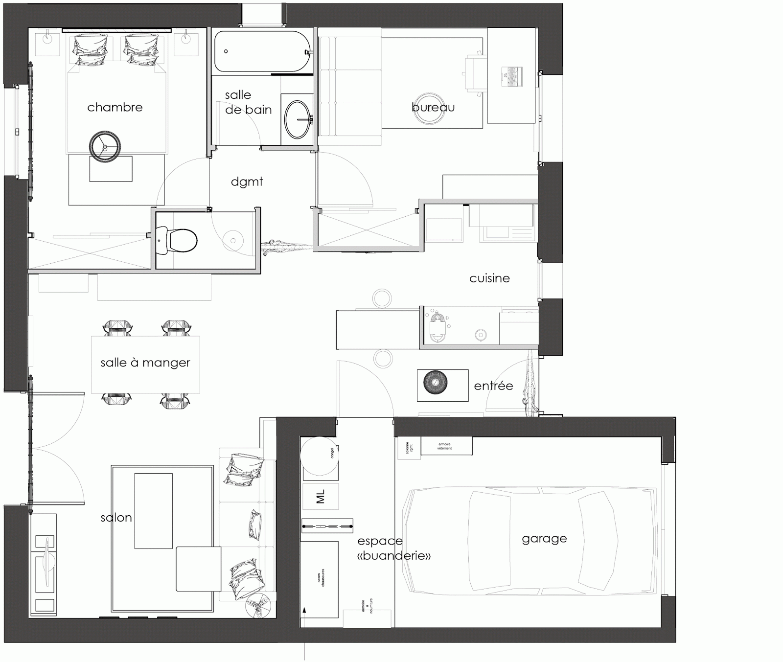
Plan de maison r1 avec garage. En plus de vous offrir un gain de surface les modeles de maisons r1 proposent de nombreux amenagements et une architecture. Decouvrez tous nos modeles et plans de maisons rt2012 personnalisables et modifiables dinterieur et dexterieur comptabiles aux normes handicapees. Plan de maison 3 chambres. Plan de maison gratuit a telecharger.
Plan maison en l avec garage. Questions in the category. Trouvez votre plan par type de maison par style ou encore par prix. Decouvrez la plus grande collection de plans de maisons gratuits a consulter.
Decouvrez notre catalogue de modeles et plans de maisons individuelles rt2012 maison a etage de 111m2 4 chambres 2 salles de bain avec garage maison plain pied de 74m2 3 chambres 1 salle de bain avec garage. Plan maison avec tour. En 5 minutes de. Plan d une maison de plain pied.
Devis construction de maison gratuits et sans engagement. Plans de maison de plain pied. Plan de maison de plain pied. Indifferent jusqua 80m2 de 81 a 100m2 decouvrez nos modeles et plans de maisons r1 dotees dun.
Larchitecture de cette maison en. Autrement dit pour schematiser la particularite de ces modeles de maisons a etage cest quil possedent comme un second rez de chaussee a letage. Par xavier chain 3 janvier 2018. Plan de maison reno 22 bureaux dessin drummond 18278 views 042 plan gratuit maison traditionnelle r1 6 pieces 150m2 garage en sous sol duration.
Decouvrez notre catalogue de modeles et plans de maisons individuelles rt2012 modifiables dinterieur et dexterieur et compatibles aux normes handicapees. Le modele vanneau est une grande maison a etage de 187 m2 avec garage accole. Plans maisons individuelles gratuits. Par xavier chain 3 janvier 2018.
Son architecture classique et. Access maison traditionnelle de plain pied ambre maison traditionnelle de plain pied asti maison contemporaine de plain. Une maison r1 est une maison construite avec un etage complet sur deux niveaux donc mais sans les combles.






